Multilocale in vendita

Ortona, Via Francesco P. Cespa
€ 53.000
Prezzo aggiornato
2 locali 2 locali
63 Mq 63 Mq
1 bagno 1 bagno

Multilocale in vendita

Ortona, Via Francesco P. Cespa

Descrizione annuncio

Ortona – Locale commerciale in centro

Contattaci per maggiori informazioni!

In Via Francesco Paolo Cespa, nel cuore di Ortona, proponiamo in vendita un ampio locale commerciale in ottime condizioni.

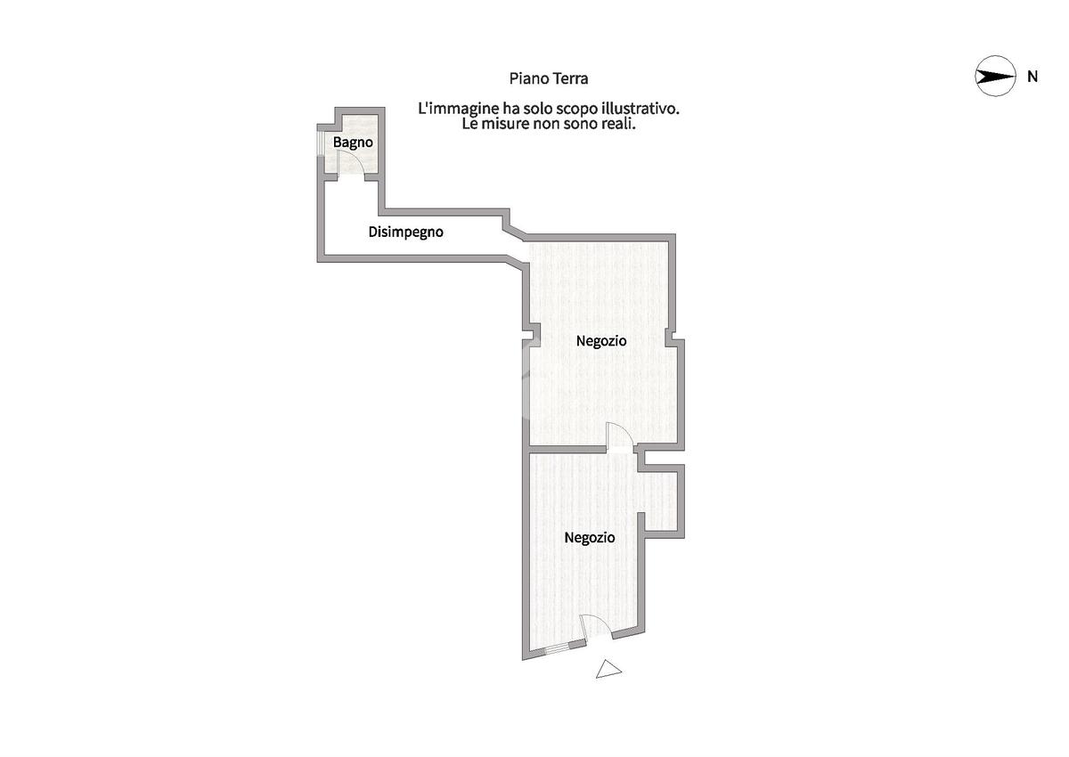
L’immobile si trova al piano terra con ingresso indipendente e si sviluppa su due ambienti principali, spaziosi e ben collegati, caratterizzati da soffitti con mattoni a vista e archi interni che donano fascino e personalità allo spazio.

Dal secondo ambiente si accede a un disimpegno che conduce al bagno finestrato, luminoso e funzionale. La disposizione degli interni rende questo locale versatile e adatto a diverse destinazioni d’uso, che si tratti di attività commerciali, showroom, studi professionali o uffici. Le condizioni generali sono buone e permettono di avviare l’attività senza interventi immediati.

Grazie alla posizione centrale, a pochi passi dai principali servizi e dal cuore cittadino, si tratta di una soluzione ideale per chi cerca un locale pratico, ben tenuto e pronto all’uso.

Se per acquistare la tua nuova casa hai bisogno di vendere il tuo attuale immobile contattaci per una consulenza con valutazione gratuita e senza impegno.
Non perdere l'opportunità di acquistare la tua nuova casa, chiamaci per fissare un appuntamento senza impegno.
Seguici anche sui nostri social, siamo presenti sui canali Facebook, Instagram e Youtube, con il nome di @Tecnocasa Ortona.

Mostra tutto

Nelle vicinanze

Trasporto pubblico Trasporto pubblico
Ortona FS
Ortona FS
440 m
Piazza plebescito
Piazza plebescito
350 m
Trasporto pubblico
380 m
Ricariche auto elettriche Ricariche auto elettriche
Zecca
220 m
Scuole Scuole
istituto San Tommaso
130 m
Scuola Elementare Piazza San Francesco
180 m
scuola primaria piazza San Francesco
330 m
scuola elementare piazza San Giuseppe
550 m
Scuole
940 m
Farmacia Farmacia
Farmacia Cames
170 m
Parafarmacia Conad
2,0 Km
Ospedali Ospedali
Ospedale "Gaetano Bernabeo"
1,1 Km
Supermercati Supermercati
Tigre
530 m
Todis
560 m
Conad
1,1 Km
EuroSpin
1,8 Km
MD
2,2 Km
Negozi Negozi
Ballerini
140 m
Panificio Picciani
210 m
Black & White
2,0 Km
Manganaro
2,0 Km
Primigi
2,0 Km
Bar Bar
Bar
1,2 Km
Ristoranti Ristoranti
Ristoranti
210 m
Da Fabio
310 m
Cristiano
510 m
La Rustica
640 m
Lino Sapori di Mare e Monti
1,9 Km
Mostra tutto

Caratteristiche

Rif.:
61114036
Piano:
Terra di 3
Totale piani:
3
Arredamento:
Assente
Condizionamento:
Assente
Ascensore:
No
Mostra tutto
Prezzo Prezzo
€ 53.000
Rata mutuo Rata mutuo
€ 250 / mese
Spese annue Spese annue
€ 0
Proponi il tuo prezzoProponi il tuo prezzo

Classe Energetica

G
G
G
G
G
G
G
G
G
EP globale non rinnovabile:
165.00 kW h/m² anno
EP globale rinnovabile:
3.50 kW h/m² anno
EP invernale del fabbricato:
EP estiva del fabbricato:
Anno di costruzione:
1967
Riscaldamento:
Autonomo
Tipo impianto:
A radiatori
Tipo alimentazione:
Metano

Prezzo ridotto di €1 (4%%)

Ti interessa visionare l'immobile?

Fissa un appuntamento  Fissa un appuntamento

Richiedi informazioni

Clicca su Leggi per aprire l'informativa
* Questi campi sono obbligatori

Calcola il tuo mutuo

Semplice e senza impegno
Anticipo

( % )
Mutuo

( % )

pochi semplici passi

inserisci i tuoi dati
Questionario completato
Grazie per aver richiesto un appuntamento senza impegno con un nostro Consulente del Credito e Assicurativo.

Hai inserito correttamente tutti i dati necessari e a breve riceverai una e-mail con un link da convalidare per inviare i tuoi dati.
Affiliato
Immobiliare Trabocchi Srl
Corso Vittorio Emanuele, 126 66026 Ortona (CH)

Il nostro staff


  • Gabriele Luciani
    Collaboratore

  • Cesare Fagnani
    Affiliato
Corso Vittorio Emanuele, 126 66026 Ortona (CH)
Zona: Ortona
Mostra su mappa
Orari: 09:00-13:00 / 15:00-19:30 Dal Lunedì al Venerdì-Sabato 09:00-13:00 / 15:00-18:00
Affiliato
Immobiliare Trabocchi Srl
Corso Vittorio Emanuele, 126 66026 Ortona (CH)

2025 Tecnocasa Franchising S.p.A. - P. IVA 08365160152 - Via Monte Bianco 60/A 20089 Rozzano (MI). Ogni agenzia ha un proprio titolare ed è autonoma. Privacy policy | Policy utilizzo | Cookie policy